Model Gold je prémiová sauna pre tých, ktorí chcú od saunovania viac.Ponúka priestrannejší interiér, aby ste si pobyt užili naplno.
Elegantný dizajn a kvalitné detaily vytvárajú pohodlné miesto na regeneráciu.Oceňovaným prvkom je aj otvorená terasa, ktorá rozširuje zážitok o relax na čerstvom vzduchu.
Gold je výborná voľba pre tých, ktorí hľadajú spojenie estetiky, komfortu a moderného prevedenia v jednom riešení.





Chcete vedieť viac o našich saunách?
Ak máte otázky alebo plánujete vlastnú saunu, radi vám poradíme pri tvorbe vášho ideálneho relaxačného miesta.
Ak máte otázky alebo plánujete vlastnú saunu, radi vám poradíme pri tvorbe vášho ideálneho relaxačného miesta.
Ak máte otázky alebo plánujete vlastnú saunu, radi vám poradíme pri tvorbe vášho ideálneho relaxačného miesta.
Cenník:
EXTERIEROVÁ FÍNSKA SAUNA S PRESTREŠENOU TERASO
EXTERIEROVÁ FÍNSKA SAUNA S PRESTREŠENOU TERASO
EXTERIEROVÁ FÍNSKA SAUNA S PRESTREŠENOU TERASO
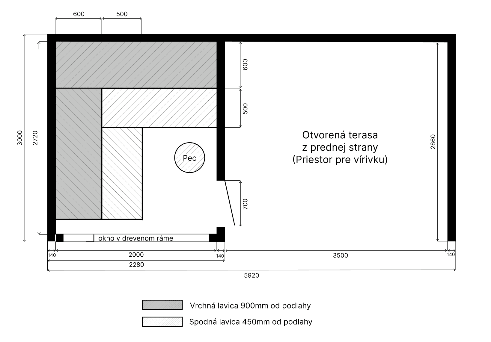
(5920x3000x2600) mm

Konštrukcia
• Drevená konštrukcia sauny KVH 80x40mm
• Drevená konštrukcia sauny KVH 80x40mm
• Drevená konštrukcia sauny KVH 80x40mm
• Tepelná izolácia 80mm
• Tepelná izolácia 80mm
• Tepelná izolácia 80mm
• Paronepriepustná fólia na vnútornej strane
• Paronepriepustná fólia na vnútornej strane
• Paronepriepustná fólia na vnútornej strane
• Paropriepustná fólia na vonkajšej strane
• Paropriepustná fólia na vonkajšej strane
• Paropriepustná fólia na vonkajšej strane
• 15mm vzduchová medzera na vnútornej aj vonkajšej strane
• 15mm vzduchová medzera na vnútornej aj vonkajšej strane
• 15mm vzduchová medzera na vnútornej aj vonkajšej strane
• Podlahová konštrukcia uzavretá pozinkovaným plechom, položená na terčoch (záleží od roviny podkladu)
• Podlahová konštrukcia uzavretá pozinkovaným plechom, položená na terčoch (záleží od roviny podkladu)
• Podlahová konštrukcia terasy bez pozinkovaného plechu, položená na terčoch (záleží od roviny podkladu)
• Podlahová konštrukcia uzavretá pozinkovaným plechom, položená na terčoch (záleží od roviny podkladu)
• Podlahová konštrukcia uzavretá pozinkovaným plechom, položená na terčoch (záleží od roviny podkladu)
• Predná pomurnica 80x200x5640
• Podlahová konštrukcia uzavretá pozinkovaným plechom, položená na terčoch (záleží od roviny podkladu)
• Podlahová konštrukcia uzavretá pozinkovaným plechom, položená na terčoch (záleží od roviny podkladu)
• Krokvy 60x120x3200 (11ks)
• Podlahová konštrukcia uzavretá pozinkovaným plechom, položená na terčoch (záleží od roviny podkladu)
• Podlahová konštrukcia uzavretá pozinkovaným plechom, položená na terčoch (záleží od roviny podkladu)
Intérier
• Vnútorné obloženie stien saunovým obkladom (severský smrek ) ošetrený (mediciálnym olejom )
• Vnútorné obloženie stien saunovým obkladom (severský smrek ) ošetrený (mediciálnym olejom )
• Vnútorné obloženie stien saunovým obkladom (severský smrek ) ošetrený (mediciálnym olejom )
• Podlaha dlážkovica (severský smrek )
• Podlaha dlážkovica (severský smrek )
• Podlaha dlážkovica (severský smrek )
• Saunové lavice samonosné, chrbtové opierky, podlahový rošt, 1x chránička svetla, 2x podhlavník (topoľová osika )
• Saunové lavice samonosné, chrbtové opierky, podlahový rošt, 1x chránička svetla, 2x podhlavník (topoľová osika )
• Saunové lavice samonosné, chrbtové opierky, podlahový rošt, 1x chránička svetla, 2x podhlavník (topoľová osika )
• Saunové doplnky: vedierko s naberačkou, presýpacie hodiny, vlhkomer s teplomerom
• Saunové doplnky: vedierko s naberačkou, presýpacie hodiny, vlhkomer s teplomerom
• Saunové doplnky: vedierko s naberačkou, presýpacie hodiny, vlhkomer s teplomerom
Exteriér
• Vonkajšie obloženie stien obkladom (severský smrek ) ošetrený (olejom OSMO ), odtieň podľa výberu zákazníka
• Vonkajšie obloženie stien obkladom (severský smrek ) ošetrený (olejom OSMO ), odtieň podľa výberu zákazníka
• Vonkajšie obloženie stien obkladom (severský smrek ) ošetrený (olejom OSMO ), odtieň podľa výberu zákazníka
• Terasa obložená terasovou doskou (sibírsky smrekovec ) ošetrený (terasovým olejom OSMO )
• Terasa obložená terasovou doskou (sibírsky smrekovec ) ošetrený (terasovým olejom OSMO )
• Terasa obložená terasovou doskou (sibírsky smrekovec ) ošetrený (terasovým olejom OSMO )
Dvere a okno
• Celoklenené dvere v trojstrannom ráme (kalené bezpečnostné sklo) (bronz )
• Celoklenené dvere v trojstrannom ráme (kalené bezpečnostné sklo) (bronz )
• Celoklenené dvere v trojstrannom ráme (kalené bezpečnostné sklo) (bronz )
• Okno v drevenom ráme 1800x1500mm (kalené bezpečnostné sklo) (bronz)
• Okno (1800x1500) (kalené bezpečnostné sklo)(bronz )
• Okno v drevenom ráme 1800x1500mm (kalené bezpečnostné sklo) (bronz)
Strecha
• Krokvy 60x120x3200 (11ks), latovanie
• Krokvy 60x120x3200 (11ks), latovanie
• Krokvy 60x120x3200 (11ks), latovanie
• Strecha CLIP Panel (antracit ) + oplechovanie, odkvap, žľab, zvod
• Strecha CLIP Panel (antracit ) + oplechovanie, odkvap, žľab, zvod
• Strecha CLIP Panel (antracit ) + oplechovanie, odkvap, žľab, zvod
Technológia
• Saunová pec Harvia Cilindro 9kw + lávové kamene 90kg
• Saunová pec Harvia Cilindro 9kw + lávové kamene 90kg
• Saunová pec Harvia Cilindro 9kw + lávové kamene 90kg
• Externé ovládanie Harvia Senflog CF9
• Externé ovládanie Harvia Senflog CF9
• Externé ovládanie Harvia Senflog CF9
• 1x sauové osvetlenie Harvia, 1x vokajšie osvetlenie terasy
• 1x sauové osvetlenie Harvia, 1x vokajšie osvetlenie terasy
• 1x sauové osvetlenie Harvia, 1x vokajšie osvetlenie terasy
SPOLU bez DPH:
SPOLU bez DPH:
11 280€
Doprava:
Doprava:
od vzdialenosti
od vzdialenosti
Montáž:
Montáž:
min 2 000 €
min 2 000 €
Doplnky
Doplnky
• Kombinácia fínskej sauny a infrasauny (saunový infražiarič Dr. Fischer Vitae 350W [5ks] )
• Kombinácia fínskej sauny a infrasauny (saunový infražiarič Dr. Fischer Vitae 350W [5ks] )
• Kombinácia fínskej sauny a infrasauny (saunový infražiarič Dr. Fischer Vitae 350W [5ks] )
2 400€
2 400€
2 400€
• Externé ovládanie digitálne Harvia Xenio CX110
• Externé ovládanie digitálne Harvia Xenio CX110
• Externé ovládanie digitálne Harvia Xenio CX110
350€
350€
350€
• Externé ovládnie digitálne na diaľku HUUM UKU wifi (mobilná aplikácia)
• Externé ovládnie digitálne na diaľku HUUM UKU wifi (mobilná aplikácia)
• Externé ovládnie digitálne na diaľku HUUM UKU wifi (mobilná aplikácia)
500€
500€
500€
• LED RGB podsvietenie lavice/opierky jeden okruh do 4m
• LED RGB podsvietenie lavice/opierky jeden okruh do 4m
• LED RGB podsvietenie lavice/opierky jeden okruh do 4m
250€
250€
250€
• Rádio s Bluetooth pripojením + 2x reproduktor VISATON do vysokej teploty
• Rádio s Bluetooth pripojením + 2x reproduktor VISATON do vysokej teploty
• Rádio s Bluetooth pripojením + 2x reproduktor VISATON do vysokej teploty
350€
350€
350€
• Soľná stena podsvietená LED pásom
• Soľná stena podsvietená LED pásom
• Soľná stena podsvietená LED pásom
590€
590€
590€
Iné požiadavky podľa želania zákazníka a všetky rozmery na mieru
Iné požiadavky podľa želania zákazníka a všetky rozmery na mieru
Iné požiadavky podľa želania zákazníka a všetky rozmery na mieru
